%

Casa Pq. da Previdência

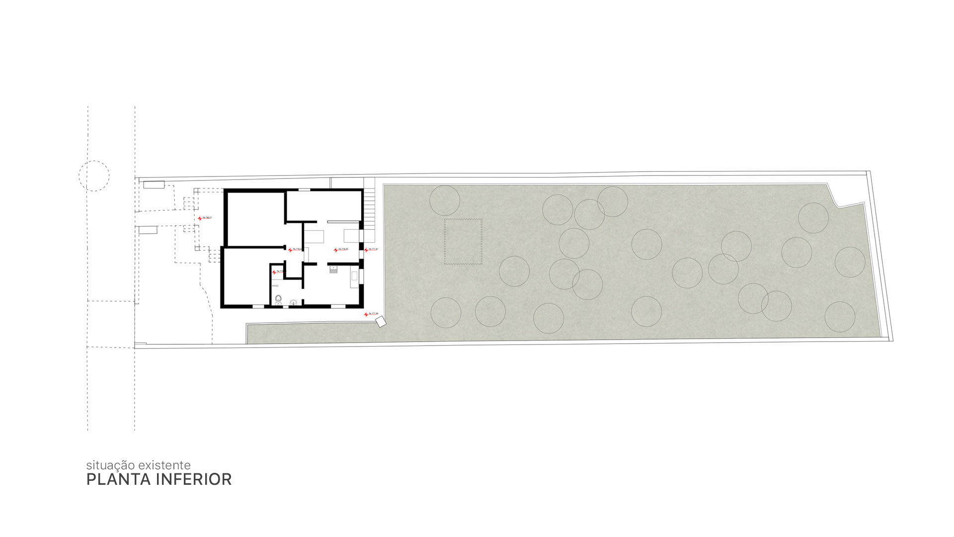
O projeto consiste na reforma e ampliação de uma casa existente, construída em 1959, na região do Parque da Previdência, em São Paulo. A nova organização proposta setoriza a casa em dois blocos:

A casa existente será mais íntima, com quarto dos filhos, sala de atividades para as crianças que poderá ser convertido em quarto de hóspedes, lavanderia e depósito. O novo bloco acolhe o programa social, como estar, cozinha, escritório e suíte do casal.

A conexão entre a edificação existente e a nova pode ser definida tanto pelo visual e materialidades (fechamentos em tijolos maciços) como também pelos novos elementos construídos (passarela e varanda).

A passarela funciona como o principal elemento de circulação. Através desse eixo, são orientados os acessos desde o ambiente externo o interior da ampliação. O desenho toma partido da relação entre o acesso a partir da calçada, em cota superior, e desnível natural do terreno, em declive, buscando criar conforto e despertar sensações para quem passeio pela casa.

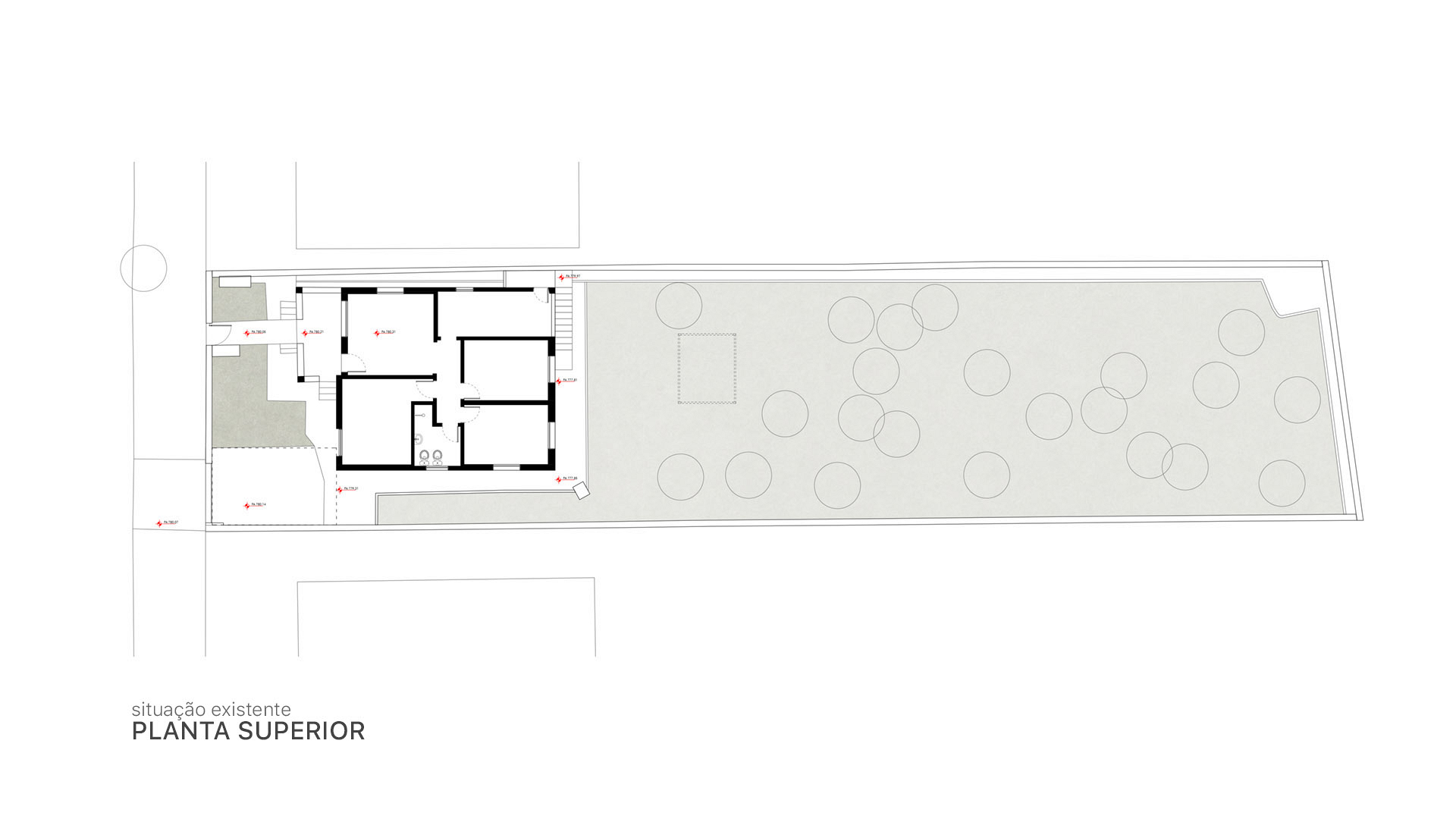
O projeto consiste na reforma e ampliação de uma casa existente, construída em 1959, na região do Parque da Previdência, em São Paulo. A nova organização proposta setoriza a casa em dois blocos:

A casa existente será mais íntima, com quarto dos filhos, sala de atividades para as crianças que poderá ser convertido em quarto de hóspedes, lavanderia e depósito. O novo bloco acolhe o programa social, como estar, cozinha, escritório e suíte do casal.

A conexão entre a edificação existente e a nova pode ser definida tanto pelo visual e materialidades (fechamentos em tijolos maciços) como também pelos novos elementos construídos (passarela e varanda).

A passarela funciona como o principal elemento de circulação. Através desse eixo, são orientados os acessos desde o ambiente externo o interior da ampliação. O desenho toma partido da relação entre o acesso a partir da calçada, em cota superior, e desnível natural do terreno, em declive, buscando criar conforto e despertar sensações para quem passeio pela casa.

Este site usa cookies para fornecer a funcionalidade necessária do site, melhorar sua experiência e analisar nosso tráfego. Ao usar nosso site, você concorda com nossa Política de Privacidade e uso de cookies.