%

Ágora Tech Park | Edifício UNI

2023 . Premiado . Premiação IAB SC, Categoria Edificações e Projetos.

2023 . Finalista . 10º Prêmio Saint-Gobain AsBEA, Categoria Corporativo e Interiores.

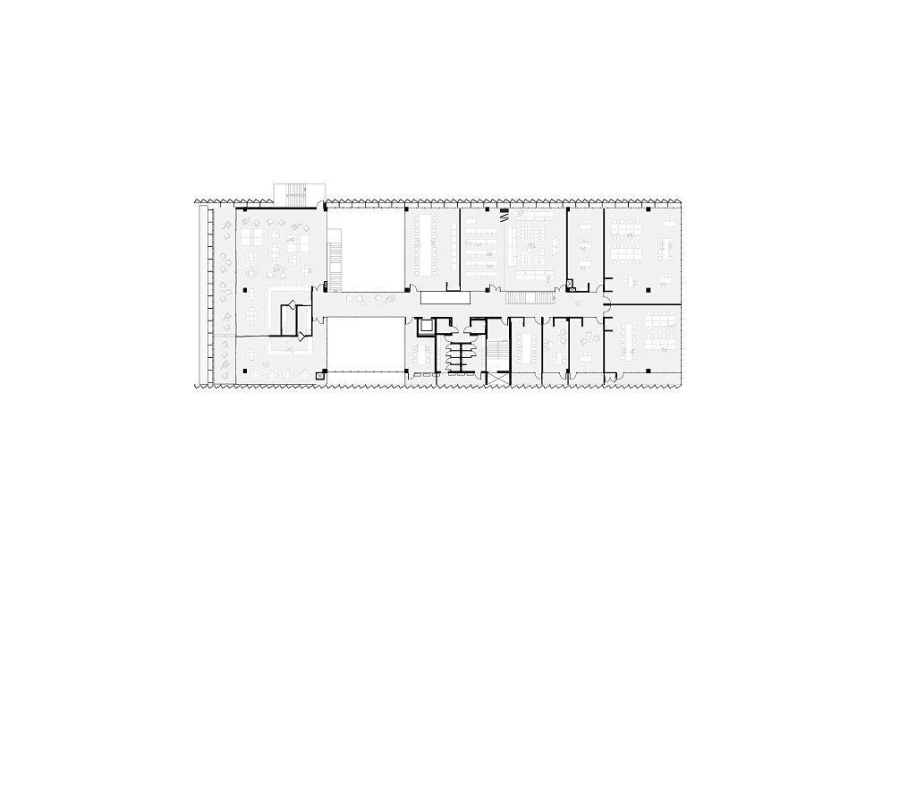
A implantação do Ágora UNI, terceiro edifício do Ágora Tech Park, articula duas cotas: o acesso principal pela Av. Perini, que permite acesso ao bosque. Nesse nível, o átrio com pé direito quadruplo organiza a chegada, as circulações verticais e programas do térreo; já na cota superior, o piso da marquise dá sequência ao eixo norte, se conectando à cota dos edifícios já construídos.

O passeio articula de um lado a vista para a mata preservada, e para o bosque que será executado, e de outro, restaurantes. Internamente, o edifício é organizado de forma pragmática, com corredor central e escritórios que ocupam o perímetro do edifício.

A modulação é pensada para se adaptar a tamanhos diversos de salas. O pragmatismo extremo é rompido nas circulações, onde são posicionados vazios pensados para melhorar o conforto ambiental do edifício e para promover as possíveis relações visuais.

O átrio é a grande área de encontro do edifício. É onde as relações visuais dos trabalhadores e visitantes se intensificam. Todas as peças estruturais do edifício são pré-fabricadas, aliado ao uso de componentes construtivos industrializados em maior parte da edificação, o que permitirá uma obra rápida e parcialmente seca.

Na fachada, arte cinética foi incorporada para promover dinâmica visual.

A implantação do Ágora UNI, terceiro edifício do Ágora Tech Park, articula duas cotas: o acesso principal pela Av. Perini, que permite acesso ao bosque. Nesse nível, o átrio com pé direito quadruplo organiza a chegada, as circulações verticais e programas do térreo; já na cota superior, o piso da marquise dá sequência ao eixo norte, se conectando à cota dos edifícios já construídos.

O passeio articula de um lado a vista para a mata preservada, e para o bosque que será executado, e de outro, restaurantes. Internamente, o edifício é organizado de forma pragmática, com corredor central e escritórios que ocupam o perímetro do edifício.

A modulação é pensada para se adaptar a tamanhos diversos de salas. O pragmatismo extremo é rompido nas circulações, onde são posicionados vazios pensados para melhorar o conforto ambiental do edifício e para promover as possíveis relações visuais.

O átrio é a grande área de encontro do edifício. É onde as relações visuais dos trabalhadores e visitantes se intensificam. Todas as peças estruturais do edifício são pré-fabricadas, aliado ao uso de componentes construtivos industrializados em maior parte da edificação, o que permitirá uma obra rápida e parcialmente seca.

Na fachada, arte cinética foi incorporada para promover dinâmica visual.

2023 . Premiado . Premiação IAB SC, Categoria Edificações e Projetos.

2023 . Finalista . 10º Prêmio Saint-Gobain AsBEA, Categoria Corporativo e Interiores.

Este site usa cookies para fornecer a funcionalidade necessária do site, melhorar sua experiência e analisar nosso tráfego. Ao usar nosso site, você concorda com nossa Política de Privacidade e uso de cookies.